
INCH-POUND
A-A-55450A
13 February 2012
SUPERSEDING
A-A-55450
31 August 1995
COMMERCIAL ITEM DESCRIPTION
RUBBER, SILICONE; CHANNEL, NONMETALLIC, SHAPE 1
The General Services Administration has authorized the use of this Commercial Item Description
for all Federal Agencies.
1. SCOPE. This commercial item description (CID) covers a silicone rubber nonmetallic channel,
shape (see Figure 1).
2. CLASSIFICATION. The silicone rubber shall be of the following classes and grades as
specified. The designated grade number corresponds to the nominal Shore Durometer A hardness
value.
Class 2A High temperature resistant
Grade 60
Class 2B High temperature resistant and low compression set
Grade 60
3. SALIENT CHARACTERISTICS.
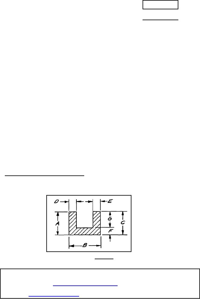
3.1 Dimensional and physical requirements. Dimensional and physical requirements shall conform
to Figure 1 and Table I. Dimensional tolerances shall conform to the applicable commercial
tolerances specified in CID A-A-59588.
Figure 1. Channel.
Comments, suggestions, or questions on this document should be addressed to Defense Supply
Center Philadelphia (DSCP), ATTN: DSCP-NASA, 700 Robbins Avenue, Philadelphia, PA
19111-5096 or e-mail to dscpg&inspecomments@dla.mil . Since contact information can
change, you may want to verify the currency of this address information using ASSIST Online
database at https://assist.daps.dla.mil .
AMSC N/A
FSC 9320
For Parts Inquires call Parts Hangar, Inc (727) 493-0744
© Copyright 2015 Integrated Publishing, Inc.
A Service Disabled Veteran Owned Small Business