
A-A-55759A
3. SALIENT CHARACTERISTICS.
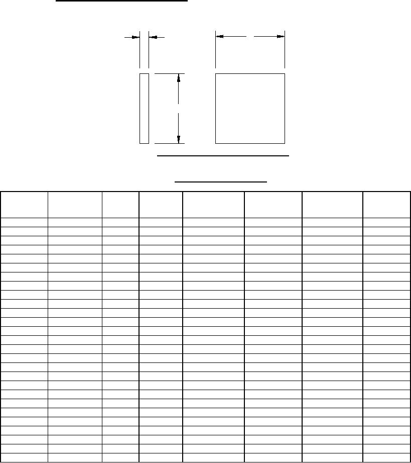
3.1 Dimensional and physical requirements. Dimensional and physical requirements shall conform
to figure 1. Dimensional tolerance shall conform to the applicable commercial tolerance specified in
CID A-A-59588.
C
A
B
Figure 1. Dimensional and physical requirements.
Table I. Dash sizes and dimensions.
TEMP RATING
MIN TENSILE
DASH
A
B
C
IN
STRENGTH
SIZE
THICKNESS
WIDTH
LENGTH
ºF
NHR
P.S.I
COLOR
001-D-5
0.015
36.000
36.000
-80 to 425
45.0 to 55.0
700
Natural
002-D-6
0.016
36.000
36.000
-80 to 425
55.0 to 65.0
650
Gray
003-A-4
0.020
36.000
36.000
-100 to 425
35.0 to 45.0
700
Natural
004-F-5
0.020
36.000
36.000
-94 to 400
45.0 to 55.0
1200
Natural
005-D-5
0.031
12.000
12.000
-80 to 425
45.0 to 55.0
700
Natural
006-A-7
0.031
24.000
36.000
-100 to 425
65.0 to 75.0
600
Gray
007-F-3
0.031
24.000
60.000
-94 to 400
25.0 to 35.0
1000
Natural
008-A-4
0.031
36.000
36.000
-100 to 425
35.0 to 45.0
700
Natural
009-B-4
0.031
36.000
36.000
-100 to 425
35.0 to 45.0
700
Natural
010-C-4
0.031
36.000
36.000
-80 to 425
35.0 to 45.0
700
Natural
011-C-7
0.031
36.000
36.000
-80 to 425
65.0 to 75.0
650
Natural
012-D-2
0.031
36.000
36.000
-80 to 425
15.0 to 30.0
700
Natural
013-D-4
0.031
36.000
36.000
-80 to 425
35.0 to 45.0
700
Natural
014-D-6
0.031
36.000
36.000
-80 to 425
55.0 to 65.0
650
Natural
015-D-7
0.031
36.000
36.000
-80 to 425
65.0 to 75.0
650
Natural
016-E-3
0.031
36.000
36.000
-130 to 400
20.0 to 35.0
850
Natural
017-E-5
0.031
36.000
36.000
-130 to 400
45.0 to 55.0
1200
Gray
018-E-6
0.031
36.000
36.000
-130 to 400
55.0 to 65.0
1100
Natural
019-F-5
0.031
36.000
36.000
-94 to 400
45.0 to 55.0
1200
Natural
020-A-5
0.040
36.000
36.000
-100 to 400
45.0 to 55.0
700
Natural
021-D-6
0.062
10.000
10.000
-80 to 425
55.0 to 65.0
650
Natural
022-D-5
0.062
12.000
120.000
-80 to 425
45.0 to 55.0
700
Natural
023-B-4
0.062
24.000
24.000
-100 to 425
35.0 to 45.0
700
Natural
024-B-4
0.062
24.000
24.000
-100 to 400
35.0 to 45.0
700
Natural
025-C-4
0.062
24.000
24.000
-80 to 425
35.0 to 45.0
700
Natural
026-C-5
0.062
24.000
24.000
-80 to 425
45.0 to 55.0
700
Natural
027-C-6
0.062
24.000
24.000
-80 to 425
55.0 to 65.0
650
Black
2
For Parts Inquires call Parts Hangar, Inc (727) 493-0744
© Copyright 2015 Integrated Publishing, Inc.
A Service Disabled Veteran Owned Small Business